Rogaland Teater og Stavanger museum

Rogaland Teater og Stavanger museum

Samspill
Nye Rogaland Teater og Stavanger museum

Prosjektet er et bindeledd mellom gammelt og nytt, mellom arkitektur, landskap og byliv. Som i musikken, der ulike stemmer flettes sammen til en helhet, skaper prosjektet sammenheng mellom historiske bygninger og ny arkitektur, mellom institusjoner og publikum, mellom kultur og hverdagsliv. «Samspill» er både fysisk og symbolsk: Den kobler byrom, binder sammen teater og museum, og inviterer mennesker inn i et åpent, inkluderende og sammensatt kulturanlegg.

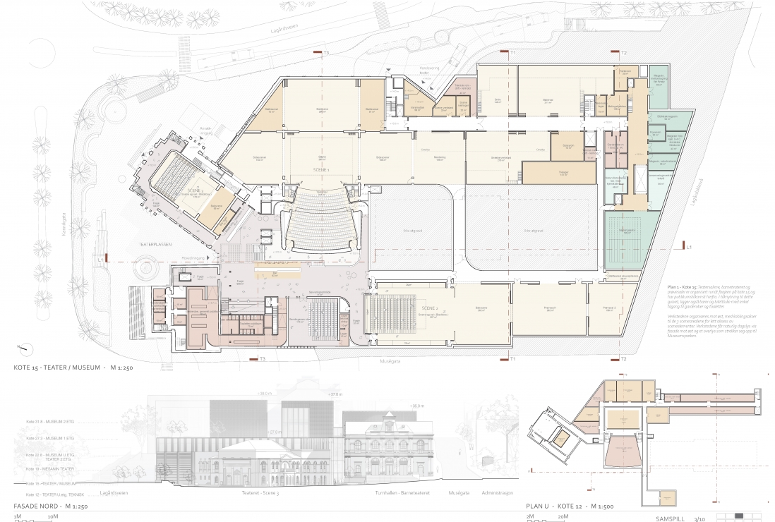
Base og paviljonger – disposisjon av nytt volum
Store deler av bygningsmassen legges under bakken og danner en massiv base – utformet som en klippe – med paviljonger inspirert av Akropolis. Basen gjenskaper eksisterende fjellside med tilsvarende materialer, vertikale grøntanlegg og grønne takflater. Eksisterende natur- og byromskvaliteter bevares og gjenopprettes, inkludert Akropolisbakken, asketreet i sørvest og trærne langs Kanikkgata. Paviljongene viderefører anleggets arkitektoniske uttrykk. Museumspaviljongen plasseres mot sør, mens et nytt scenetårn, foajébygg og vertikal foajé plasseres mellom dagens teater og museum i nord. Museum og teater utformes for både samspill og selvstendighet: museumsfunksjonene fordeles mellom eksisterende bygg og ny paviljong, teaterets publikumsarealer omkranser teaterhallen og det gamle teaterbygget, med hovednivå på kote 15 mot Teaterplassen/ Leiv Isaksens plass. Institusjonene bindes sammen via en felles vertikal foajé.

Vertikal Foajé – Byggets hjerte
Den vertikale foajéen fungerer som byggets sentrale samlingspunkt og binder teater og museum sammen. Den kobler fysisk og visuelt nivåene, og skaper en dynamisk romopplevelse med tydelig orientering. I tillegg til fellesfunksjonene til teater og museum kommer også institusjonenes kjernevirksomhet til syne i foajéen. Foajéen preges av historiske fasader fra teaterbygget, museumsbygget og teaterhallen, og et amfi knytter nedre plan til Teatergata med stort glassfelt mot administrasjonsbygget. På vestsiden gir en egen inngang og trappekjerne ansatte snarvei til kantinen via broforbindelse.

Forholdet mellom nytt og gammelt
Det legges vekt på å bevare og videreutvikle Eckhoffs plangrep og bygninger. Teaterbygget bevares, østfløyens fasade opprettholdes, og nordfasaden tilbakeføres. Teatersalen opprettholdes. Teaterhallen/Turnhallen bevares med tilbakeført sørfasade og blir ”Barneteaterets hus”. Museumsbygget bevares og transformeres, med videreført museumsfunksjon og tilbakeført sørfasade. Det nye anlegget tilpasser seg det eksisterende, med ny arkitektur som bygger videre på det etablerte formspråket, men med egen identitet. Nye volumer er utformet for å fremheve de historiske bygningene, som samtidig gir tyngde og forankring til det nye. De historiske bygningene fungerer som orienteringspunkter og gir stedet karakter og tilhørighet. Fasader og strukturer er aktivt integrert i det arkitektoniske grepet, både innvendig og utvendig, anleggets historikk videreføres. Et tett samarbeid med vernemyndigheter vil være en naturlig del av prosessen.

Landskapsrommet
Landskapet danner scenen der arkitektur, byliv og natur møtes. De tre landskapsrommene – Teaterplassen, Museumsplassen og Museumsparken – utgjør prosjektets åpne hjertekamre, hvert med sin egen karakter, men forbundet i et helhetlig samspill. Som tre satser i et felles verk leder de publikum gjennom ulike stemninger – fra byens pulserende rytme til parkens rolige etterklang. Rommene forholder seg til byens eksisterende strukturer og terreng som om de alltid har vært der, og lar nye grep vokse frem av det stedlige. Natur og byrom, historie og samtid, flettes sammen i et landskap som både bevarer og gjenskaper stedets egenart. Teaterplassen vender seg mot byen og danner den åpne invitasjonen – et urbant torg der kulturinstitusjonene trer frem i lyset. Museumsplassen blir en grønn overgang, en hage i hjertet av byen, der mennesker møtes mellom kultur og hverdag. Museumsparken åpner seg mot åssiden og landskapet, som en forlengelse av museets fortelling og byens naturarv. Tilsammen danner de et sammensatt kulturlandskap, som både er byens ansikt og dens indre rom – en levende struktur som knytter nytt og gammelt, natur og arkitektur, til én samlet bevegelse. Her får byen puste, og menneskene får plass til å samles, oppleve og skape – i samspill med hverandre og med stedet.